ГлавнаяКаталог Торговая площадь — Блюхера ул., 12

Блюхера ул., 12, 134.00 м 2

174 500 ₽
Площадь: 134.00м 2 Этаж 1 из 4
1 302 ₽/м 2
Голунова Ирина
Голунова Ирина
Специалист
или оставьте ваш номер,
и я перезвоню в течение 5 минут
Нажимая на кнопку, вы даете своё согласие на обработку персональных данных и соглашаетесь с политикой конфиденциальности
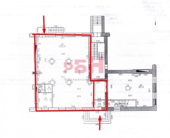
ПРЕДЛАГАЕТСЯ в АРЕНДУ ПОМЕЩЕНИЕ 134 кв.м в жилом доме по адресу Блюхера 12 на перекрестке напротив ТЦ АПЕЛЬСИН

Без комиссии для арендаторов.

-помещение расположено на улице Блюхера 12, в зоне плотной жилищной застройки, с развитой инфраструктурой, с хорошим пешеходным и автомобильным трафиком., в радиусе 500м проживает 20251 человек;
-в непосредственной близости расположен перекресток, в 50м трамвайная остановка, само помещение находится напротив ТЦ Апельсин;
-помещение расположено на 1-ом этаже 4-х этажного жилого дома, находящегося на первой линии;
-имеет главный вход с фасада здания;
-мощность 8 кВт;
-высота потолков 3 м;
-косметический ремонт (пол керамо-гранит; потолок Амстронг со светодиодными светильниками, стены окрашены);
-есть зона разгрузки- погрузки.

Сдаваемое помещение подойдет под: продуктовый магазин, стоматологию, диагностический центр, офис, магазин одежды, косметологический салон, выставочный зал и другие виды бизнеса.

Стоимость аренды: 174500 руб/мес. (1300 руб/кв.м) за первые полугода, далее 184800,00 руб/мес (1400,00 руб\кв.м)
Коммунальные платежи оплачиваются отдельно.

Более подробную информацию уточняйте у наших специалистов.
------------------------------------------------------
"Регион Бизнес Недвижимость".
Коммерческая недвижимость
Без комиссии для арендаторов
Арт. 98521887
Расположение

Блюхера ул., 12

Похожие объекты

Посмотреть другие объявления в этой категории