ГлавнаяКаталог Офис — Красноармейская ул., 10

Красноармейская ул., 10, 217.67 м 2

37 000 000 ₽
Площадь: 217.67м 2 Этаж 8 из 19
169 982 ₽/м 2
Патрушева Наталья
Патрушева Наталья
Специалист
или оставьте ваш номер,
и я перезвоню в течение 5 минут
Нажимая на кнопку, вы даете своё согласие на обработку персональных данных и соглашаетесь с политикой конфиденциальности
ПРОДАМ ОФИС в центре города в современном БЦ

Без комиссии для покупателей.

- Офис расположен в БЦ «Антей» в деловом центре города
- В здании есть кофейня, гостиница, копировальный центр, юридические и туристические компании, банки
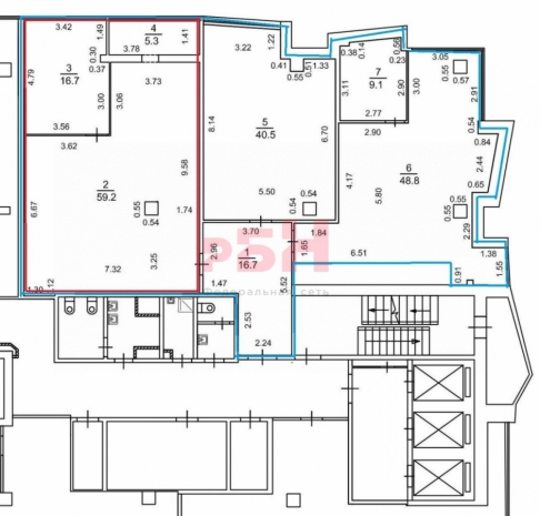
- Площадь офиса: 217, 67 кв.м.- Офис 196,2 кв.м. (3 кабинета 81,2 м2, 57,9 м2, 40,5 м2 + зона ресепшн 16,7м2) + 21,47 кв.м. МОПы (коридоры и с/у)
- 8 этаж / общее количество этажей 19
- Год постройки: 2004
- Отделка: полы - коммерческий линолеум, стены - обои под покраску, потолки подвесные Армстронг, сделан свежий ремонт
- Высота потолков 2,7 метра
- Планировка: смешанная
- Автономная система отопления, вентиляции и кондиционирования
- Пожарная сигнализация
- Радиооповещение по всему зданию
- 2 скоростных лифта
- Специализированная телекоммуникационная компания предоставляет услуги высококачественной цифровой и аналоговой связи
- Круглосуточная охрана, система контроля доступа в здание и на каждый этаж
- Наземная парковка около БЦ, многоуровневая платная парковка
- Хорошая транспортная доступность, на кольце улиц Белинского-Малышева-К.Либкнехта, ближайшая станция метро «Площадь 1905 года»

Стоимость объекта 37 000 000 руб (169 982 руб/кв.м)

Более подробную информацию уточняйте у наших специалистов.
------------------------------------------------------
"Регион Бизнес Недвижимость".
Коммерческая недвижимость .
Без комиссии для покупателей.
Арт. 54488405
Расположение

Красноармейская ул., 10

Похожие объекты

Посмотреть другие объявления в этой категории