Хохлова Елена
Специалист
или оставьте ваш номер,
и я перезвоню в течение 5 минут
Нажимая на кнопку, вы даете своё согласие на обработку персональных данных и соглашаетесь с политикой конфиденциальности
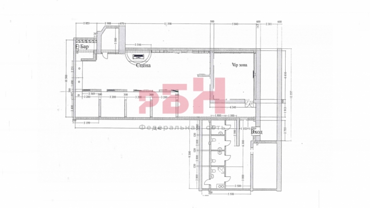
ПРЕДЛАГАЕТСЯ В АРЕНДУ ПОМЕЩЕНИЕ СВОБОДНОГО НАЗНАЧЕНИЯ общей площадью 323 кв.м.

Без комиссии для арендаторов.

-Расположено в подвальном этаже отдельно стоящего здания на улице Опалихинская
-Хорошая транспортная доступность, рядом остановка общественного транспорта "Юридический университет", "Готвальда". Высокий автомобильный и пешеходный трафик
-Рядом располагаются: сеть супермаркетов "Перекресток", сеть "ПивКо", Сбербанк и др.
-Возможность размещения вывески
-Выделенная мощность - 50 кВт
-Высота потолков 2,48 м
-Комната видеонаблюдения
-В помещении сделан ремонт под караоке-бар, кафе, есть оборудование
-Приточно-вытяжная вентиляция
-Парковка более 30 м/м
Сдаваемое помещение подойдет под: бар, бильярдный клуб, кафе, ночной клуб, музыкальная студия.

Стоимость аренды: 250 000 руб/месяц
Коммунальные услуги в стоимость не включены и оплачиваются отдельно.

Более подробную информацию уточняйте у наших специалистов.

------------------------------------------------------
"Регион Бизнес Недвижимость".
Коммерческая недвижимость.
Без комиссии для арендаторов.

Арт. 33300366
Расположение

Опалихинская ул., 15

Похожие объекты

Посмотреть другие объявления в этой категории