ГлавнаяКаталог Офис — Мельникова ул., 38

Мельникова ул., 38, 38.20 м 2

45 600 ₽
Площадь: 38.20м 2 Этаж 2 из 3
1 193 ₽/м 2
Хвостанцева Светлана
Специалист
или оставьте ваш номер,
и я перезвоню в течение 5 минут
Нажимая на кнопку, вы даете своё согласие на обработку персональных данных и соглашаетесь с политикой конфиденциальности
Предлагается в аренду офисное помещение в деловом центре «Аристократ» в Верх-Исетском районе Екатеринбурга.

Без комиссии для арендаторов.

-Помещение расположено в сформированной деловой локации, рядом с улицами Крауля и Ключевская, вблизи Екатеринбург Арена, удобным подъездом к зданию и наличием парковочных мест поблизости;
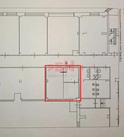
-общая площадь – 38,2 кв.м;
-2 этаж;
-кабинетная планировка (2 кабинета + входная группа);
-в каждом кабинете есть окно;
-возможность объединения в open space;
-в здании есть лифт;
-доступ 24/7.

Помещение подойдет под офис компании, бухгалтерию, юридические и консалтинговые услуги,
небольшой отдел продаж, бьюти-сферу, кабинет психолога и др. виды деятельности.

Стоимость аренды: 45 600 рублей в месяц (1194 руб/кв.м)
Коммунальные платежи оплачиваются дополнительно.

Более подробную информацию уточняйте у специалистов компании.
_____________________________________________________________________________
Регион Бизнес Недвижимость
Коммерческая недвижимость
Без комиссии для арендаторов
Арт. 134461818
Расположение

Мельникова ул., 38

Похожие объекты

Посмотреть другие объявления в этой категории