ГлавнаяКаталог Торговая площадь — Толмачева ул., 25

Толмачева ул., 25, 64.30 м 2

83 590 ₽
Площадь: 64.30м 2
1 300 ₽/м 2
Ададуров Сергей
Ададуров Сергей
Специалист
или оставьте ваш номер,
и я перезвоню в течение 5 минут
Нажимая на кнопку, вы даете своё согласие на обработку персональных данных и соглашаетесь с политикой конфиденциальности
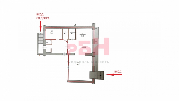
ПРЕДЛАГАЕТСЯ в АРЕНДУ ПОМЕЩЕНИЕ общей площадью 64.3 кв.м., расположенное в Кировском районе, в самом центре города его деловой и культурной части, на пересечении улиц Толмачёва - Первомайская.
Без комиссии для арендатора

- развитая инфраструктура: рядом находятся магазины, кафе, рестораны, деловые и торговые центры, отдел полиции, огромное количество государственных и коммерческих предприятий, в 2 минутах ходьбы расположена набережная городского пруда любимое место отдыха горожан и гостей города;
- транспортная доступность: в шаговой доступности несколько остановок общественного транспорта «Филармония, пл. Труда»(автобус, троллейбус, трамвай, маршрутное такси),до станции метро «Площадь 1905 года» пешком 13 минут ходьбы;
- этаж цокольный/ общее количество этажей 5;
- общая площадь 64,3 кв.м
- отдельный вход с улицы Толмачёва, имеется запасный выход во двор ;
- помещение готово к работе сделан хороший ремонт: потолок «Армстронг», стены-декоративные панели, обои под покраску, на полу керамогранит;
- мокрая точка: 3 шт.(есть санузел);
- высота потолков 2.9 метра;
- вытяжка общедомовая, кондиционеры;
- мощность 15 кВт.;
- бесплатная парковка;

Помещение подойдёт: под клиентский офис, офис компании, магазин, пункт выдачи, студию красоты, фото студию и многое другое.

Стоимость аренды на первый месяц: 83 590 руб/мес (1 300 руб./кв.м.) ,
Коммунальные платежи не включены в стоимость аренды.

Более подробную информацию уточняйте у наших специалистов.
------------------------------------------------------
"Регион Бизнес Недвижимость".
Коммерческая недвижимость.
Без комиссии для арендаторов.


Арт. 118956876
Расположение

Толмачева ул., 25

Похожие объекты

Посмотреть другие объявления в этой категории