ГлавнаяКаталог Офис — Краснофлотцев ул., 19

Краснофлотцев ул., 19, 68.10 м 2

68 100 ₽
Площадь: 68.10м 2
1 000 ₽/м 2
Мельникова Ольга
Мельникова Ольга
Специалист
или оставьте ваш номер,
и я перезвоню в течение 5 минут
Нажимая на кнопку, вы даете своё согласие на обработку персональных данных и соглашаетесь с политикой конфиденциальности
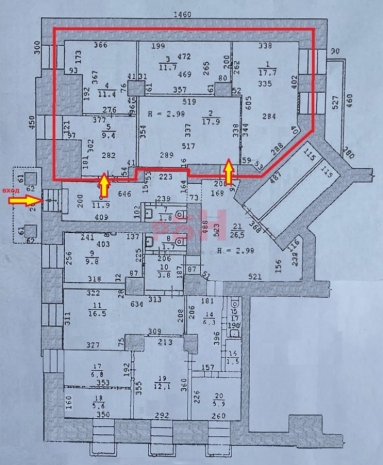
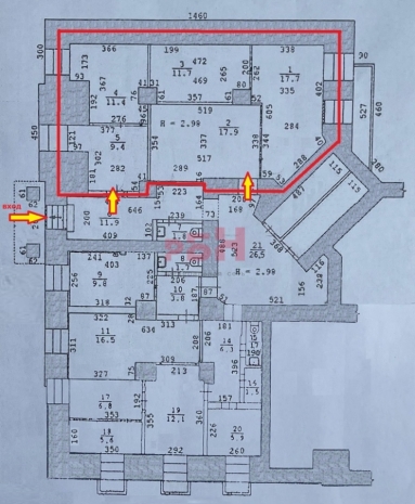
Предлагается в аренду часть универсального помещения в центре Эльмаша (68,1 кв.м.).
Без комиссии для арендатора.

- помещение расположено в высоком цокольном этаже жилого дома с полноценными окнами на уровне первого этажа;
- удoбнoe pаcпoлoжeниe в центре Эльмашa: пеpекpeстoк Kрacнoфлoтцев - Cт. Большeвиков;
- хорошая транспортная доступность, рядом остановки общественного транспорта, парковка;
- развитая инфраструктура: магазины, аптеки, жилая застройка;
- общая площадь сдаваемых в аренду помещений составляет 68,1 кв.м. с возможностью увеличения до 120 или 180 кв.м.;
- высота потолков - 3,0 м;
- во всех помещениях сделан косметический ремонт;
- общий вход на несколько арендаторов;
- возможна перепланировка;
- охранно-пожарная сигнализация, видеонаблюдение;
- центральные коммуникации: горячая и холодная вода, отопление, санузел;
- открытая парковка, всегда парковочные места перед зданием.

Помещение подойдет под офис, интернет-магазин, магазин промышленных товаров, автомагазин, нешумное производство и другие аналогичные виды деятельности.

Стоимость аренды – 68 100 рублей в месяц, (1000 руб./кв.м)
Коммунальные платежи оплачиваются дополнительно.

Более подробную информацию уточняйте у наших специалистов.
------------------------------------------------------
"Регион Бизнес Недвижимость"
Коммерческая недвижимость
Без комиссии для арендаторов
Арт. 110214660
Расположение

Краснофлотцев ул., 19

Похожие объекты

Посмотреть другие объявления в этой категории