ГлавнаяКаталог Офис — Боевых дружин ул., 20

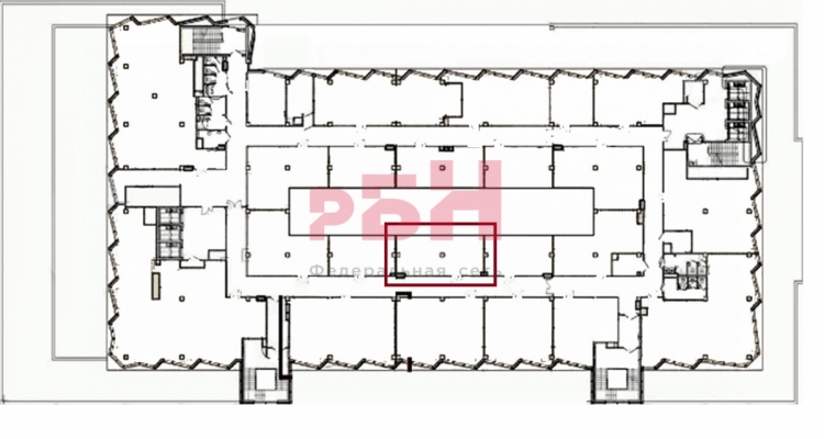
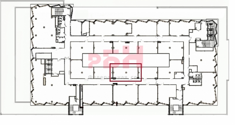
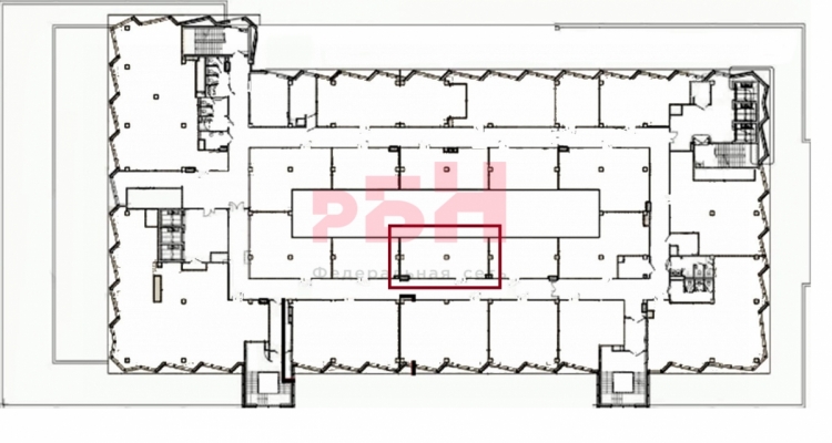
Боевых дружин ул., 20, 57.00 м 2

140 000 ₽
Площадь: 57.00м 2 Этаж 5 из 6
2 456 ₽/м 2
Хохлова Елена
Хохлова Елена
Специалист
или оставьте ваш номер,
и я перезвоню в течение 5 минут
Нажимая на кнопку, вы даете своё согласие на обработку персональных данных и соглашаетесь с политикой конфиденциальности
Предлагается в аренду офисное помещение площадью 57 кв.м. в деловом квартале Екатеринбург - Сити
Без комиссии для арендаторов.

- Офис находится на 5 этаже БЦ «ГЛАВНЫЙ»;
- Хорошая транспортная доступность, в шаговой доступности остановки общественного транспорта, до метро 5 минут;
- Общая площадь 57 кв.м на 5 этаже;
- 1 и 2 этаж представлены кухни мира;
- Панорамные окна;
- Возможность зонирования стеклянными перегородками;
- Видеонаблюдение на всех этажах в лифтовых холлах, коридорах и помещениях общего пользования;
- Дизайнерские холлы с живыми растениями и lоungе-зонами – пространство для отдыха и переговоров;
- Бесплатная гостевая парковка (1 час) у здания напротив, платный паркинг у самого БЦ. Свободная парковка на улице

Стоимость аренды 140 000 руб/месяц (2456 руб/кв.м)

Более подробную информацию уточняйте у наших специалистов.
------------------------------------------------------
"Регион Бизнес Недвижимость".
Коммерческая недвижимость.
Без комиссии для арендаторов.
Арт. 108980525
Расположение

Боевых дружин ул., 20

Похожие объекты

Посмотреть другие объявления в этой категории