ГлавнаяКаталог Офис — Машиностроителей ул., 19

Машиностроителей ул., 19, 169.40 м 2

177 870 ₽
Площадь: 169.40м 2 Этаж 4 из 6
1 050 ₽/м 2
Фоминых Светлана
Фоминых Светлана
Специалист
или оставьте ваш номер,
и я перезвоню в течение 5 минут
Нажимая на кнопку, вы даете своё согласие на обработку персональных данных и соглашаетесь с политикой конфиденциальности
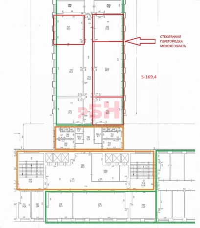
Предлагается в аренду офисное помещение общей площадью 169,4 кв. м состоит из 4 кабинетов.

Без комиссии для арендаторов.

-удобное расположение здания в центре Уралмаша, в 1 минуте ходьбы от остановки наземного общественного транспорта (автобус, трамвай, троллейбус), в 10 минутах - метро;
-в Бизнес-центре находятся две точки общественного питания с демократичными ценами, кофейня, магазин продуктов, офис Альфа-банка и банкоматы;
общая площадь 169,4 кв.м,состоит из 4 кабинетов (один из них расположен напротив)
-современный светлый офис;
-оснащен структурированной кабельной системой (СКС) - это единая система кабельных трасс, которая позволяет передавать информацию любого рода. На каждое рабочее место может быть подана любая информация (компьютерная сеть, телефон, видеонаблюдение, сигнализация и т.д.) без прокладки дополнительных сетей.
-высота потолков 3,3 м;
-охранная сигнализация;
-в здании Бизнес-центра "Прогресс" налажена современная система доступа и охраны (персональная магнитная карта), имеется 6 лифтов;
- парковка стихийная

Стоимость аренды: 177 870 руб./кв.м
плюс НДС 5% и коммунальные платежи 200р за кв.м

Более подробную информацию уточняйте у наших специалистов.
------------------------------------------------------
"Регион Бизнес Недвижимость".
Коммерческая недвижимость .
Без комиссии для арендаторов.
Арт. 101358114
Расположение

Машиностроителей ул., 19

Похожие объекты

Посмотреть другие объявления в этой категории