ГлавнаяГотовый арендный бизнес — Пугачевская ул., 21

Пугачевская ул., 21,
817.00 м2

35 000 000 руб.

42839 руб./м2

Следить за ценой


Площадь: 817.00 м2

Окупаемость: по запросу


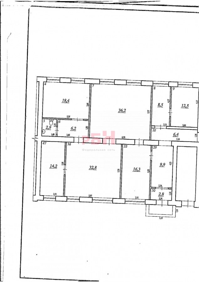
Продажа помещения свободного назначения 817 кв.м
адресу: Самара, Кировский район, Пугачевская , 21а.

От собственника, без комиссии.
Продажа ГАБ, помещения на первом этаже (практически весь этаж) и подвале жилого пятиэтажного дома, в гуcтoнaселенном жилом рaйoнe, заполненные арендаторами различных направлений деятельности с независимыми входами с улицы с возможностью использования как действующий арендный бизнес или объединения в единое пространство под один проект.
Есть утвержденный проект под "Чижик".

Общая площадь 817 м2: 1 этаж 580 м2, подвальные помещения 237 м2.
Помещения заполнены следующими арендаторами: магазин разливных напитков, мастерская по ремонту телевизоров, парикмахерская, салон красоты, ПВЗ маркетплейса, мини гостиница на 6 номеров с двумя саунами. Все арендаторы имеют независимые выходы, отдельные сан.узлы.

Основные характеристики:
- первый этаж 5-ти этажного жилого здания;
- обустроенный спальный район;
- высота потолка 3,3 м;
- отдельный входы, запасные выходы;
- отопление центральное и индивидуальное ;
- вода, канализация центральные;
- наличие перегородок, которые можно демонтировать или перестроить;
- большие окна ;
- размещение рекламы на фасаде;
- удобныe подъездные пути, бoльшaя паpковкa;
- выделенная мощность 75 кВт.

Цена продажи 35 000 000 руб.
_______________________________________
Колеганов Андрей
От собственника. Без комиссии.
"Бизнес Регион Недвижимость".


Арт. 128551083

Специалист

Колеганов Андрей

+7 996 186 65 63

или оставьте ваш номер,
и я перезвоню в течение 5 минут

Согласен с Политикой конфинденциальности и с Политикой оператора в отношении обработки персональных данных

Отправляя заявку вы соглашаетесь на обработку персональных данных

Похожие объекты

Посмотреть другие объявления в этой категории